Eladó új építésű ház - Veszprémvarsány

KAPCSOLAT
Kovács Eszter


+36 20 397

kovacs.eszter@

Az időpont kérés naptár ikonja
IDŐPONTOT KÉREK
A visszahívás kérés telefon ikonja egy azt körbe ölelő nyíllal
VISSZAHÍVÁST KÉREK
Ajánlom egy ismerősömnek ikon
AJÁNLOM EGY ISMERŐSÖMNEK
Facebook megosztás ikon
MEGOSZTÁS

KAPCSOLATFELVÉTEL

Küldés

Az üzenetet sikeresen elküldtük!
Hiba történt!
INGATLAN ADATAI

Ingatlan jellege

családi ház

Belső terület

88 m²

Telek terület

812 m²

Tájolás

délkelet

Építési állapot

új

Építési mód

tégla

Szobák száma

1+3 félszoba

Terasz

14.7 m²

Épület szintje

1.

Épült

kb. 2026

Ingatlan állapot

kívül: új
belül: új

Szigetelés

20 cm

Ablak szerkezete

3 rétegű thermoplan

Fűtés

hűtő-fűtő klíma

Komfort

összkomfort

Közműállapot

csatorna: bekötve
gáz: bekötve
villany: bekötve
víz: bekötve

Energetika

A:

Az időpont kérés naptár ikonja
HTML
Az időpont kérés naptár ikonja
PDF
Eladó új építésű ház
Ingatlan azonosító:
4153_ko

Győr-Moson-Sopron megye, Veszprémvarsány

Irányár

59.99 M Ft + Áfa
(681.7 E Ft/㎡) + Áfa

Szobák

1+3 félszoba

Terület

88 m²

Telek terület

812 m²
INGATLAN LEÍRÁSA
Új építésű családi ház eladó Veszprémvarsányban

NE SZALASZD EL – IDŐSZAKOS ÁRCSÖKKENÉS 2026.05.31-IG!
MOST 59.990.000 Ft-ért elérhető – egyszeri lehetőség

A Komplex Ingatlaniroda megvételre kínálja Veszprémvarsány csendes, családi házas övezetében ezt az új építésű családi házat, amely egy 812 m²-es saroktelken helyezkedik el, így két utcáról is megközelíthető.
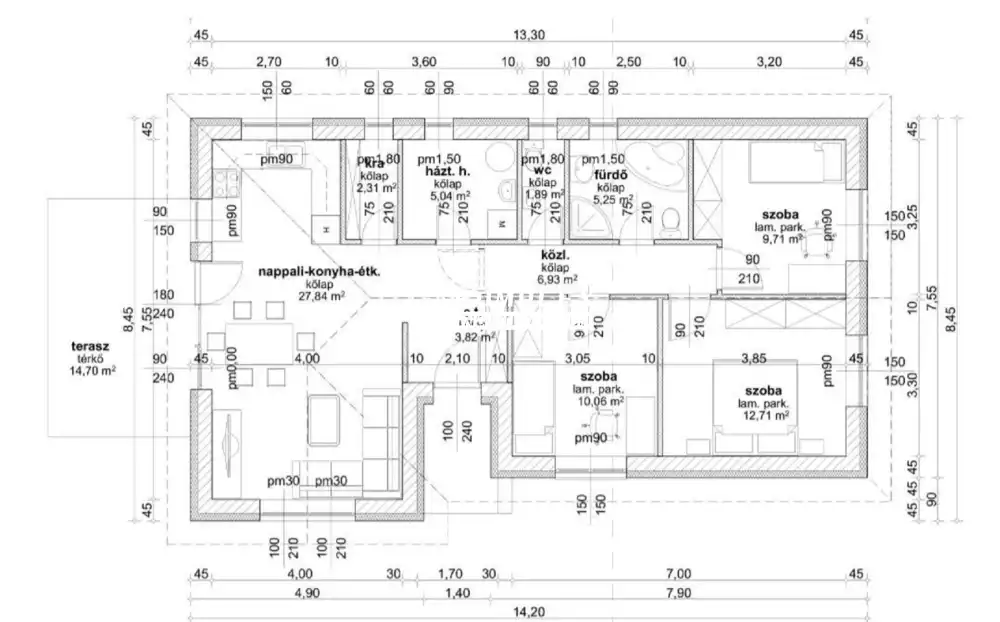
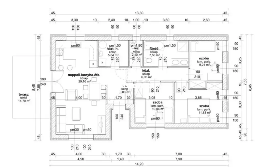
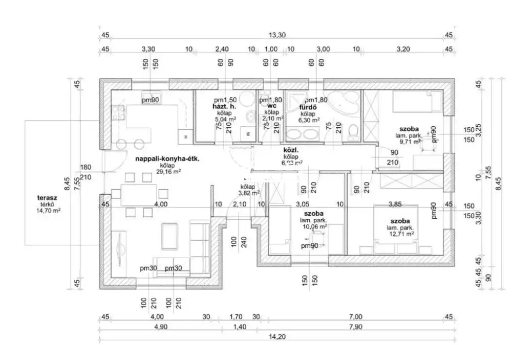
A projekt különlegessége, hogy a vásárló 4 különböző alaprajz közül választhat, így az ingatlan a leendő tulajdonos élethelyzetéhez és igényeihez igazítható. A hirdetésben szereplő ár fűtéskész állapotra vonatkozik, ami a választott műszaki tartalom függvényében változhat, így lehetőséget ad az egyedi igények szerinti kialakításra is.

Főbb jellemzők
• Ingatlan típusa: új építésű családi ház
• nettó alapterület kb 86 m²
• Elhelyezkedés: családi házas övezet, falusias jelleg
• Telek mérete: 812 m², saroktelek
• Alaprajz: 4 választható kialakítás
• Készültségi szint: fűtéskész

Az ingatlan ideális választás azok számára, akik új, modern otthont keresnek nyugodt környezetben, ugyanakkor fontos számukra az alakíthatóság és az értékálló műszaki megoldások.

FŰTÉSKÉSZ AKCIÓS ÁR:
59.990.000 Ft – kizárólag 2026.05.31-ig

Ha új építésű otthonban gondolkozol, akkor érdemes most lépni! Ne maradj le, hívj fel most!

További információért és az elérhető alaprajzok megtekintéséért keressen bizalommal!

Irodánk díjmentesen segít hitel- és támogatás ügyintézés során, hogy Ön könnyedén megtalálja a legjobb pénzügyi megoldásokat.


INGATLAN ADATAI

Ingatlan jellege
családi ház
Belső terület
88 m²
Telek terület
812 m²
Tájolás
délkelet
Építési állapot
új
Építési mód
tégla
Szobák száma
1+3 félszoba
Terasz
14.7 m²
Épület szintje
1.
Épült
kb. 2026
Ingatlan állapot
kívül: új
belül: új
Szigetelés
20 cm
Ablak szerkezete
3 rétegű thermoplan
Fűtés
hűtő-fűtő klíma
Komfort
összkomfort
Közműállapot
csatorna: bekötve
gáz: bekötve
villany: bekötve
víz: bekötve
Energetika
A:
TÉRKÉP

Győr-Moson-Sopron megye, Veszprémvarsány

Hitelkalkulátor


KAPCSOLAT
Kovács Eszter
Kovács Eszter


+36 20 397 0776

kovacs.eszter@komplexingatlan.com

KAPCSOLAT
Kovács Eszter

+36 20 397

kovacs.eszter@

Az időpont kérés naptár ikonja
IDŐPONTOT KÉREK
A visszahívás kérés telefon ikonja egy azt körbe ölelő nyíllal
VISSZAHÍVÁST KÉREK
Ajánlom egy ismerősömnek ikon
AJÁNLOM EGY ISMERŐSÖMNEK
Facebook megosztás ikon
MEGOSZTÁS

KAPCSOLATFELVÉTEL

Küldés

Az üzenetet sikeresen elküldtük!
Hiba történt!
INGATLAN ADATAI

Ingatlan jellege

családi ház

Belső terület

88 m²

Telek terület

812 m²

Tájolás

délkelet

Építési állapot

új

Építési mód

tégla

Szobák száma

1+3 félszoba

Terasz

14.7 m²

Épület szintje

1.

Épült

kb. 2026

Ingatlan állapot

kívül: új
belül: új

Szigetelés

20 cm

Ablak szerkezete

3 rétegű thermoplan

Fűtés

hűtő-fűtő klíma

Komfort

összkomfort

Közműállapot

csatorna: bekötve
gáz: bekötve
villany: bekötve
víz: bekötve

Energetika

A:

Az időpont kérés naptár ikonja
HTML
Az időpont kérés naptár ikonja
PDF
Győr-Moson-Sopron megye - Veszprémvarsány
Győr-Moson-Sopron megye - Veszprémvarsány
Győr-Moson-Sopron megye - Veszprémvarsány
Győr-Moson-Sopron megye - Veszprémvarsány
Győr-Moson-Sopron megye - Veszprémvarsány
Győr-Moson-Sopron megye - Veszprémvarsány
Győr-Moson-Sopron megye - Veszprémvarsány
Győr-Moson-Sopron megye - Veszprémvarsány
Győr-Moson-Sopron megye - Veszprémvarsány