KAPCSOLAT
IDŐPONTOT KÉREK
VISSZAHÍVÁST KÉREK
AJÁNLOM EGY ISMERŐSÖMNEK
MEGOSZTÁS
KAPCSOLATFELVÉTEL
Az üzenetet sikeresen elküldtük!
Hiba történt!
INGATLAN ADATAI
Ingatlan típusa
l2
Ingatlan jellege
téglalakás
Belső terület
40 m²
Tájolás
dél
Építési állapot
új
Építési mód
tégla
Szobák száma
2 szoba
Terasz
12 m²
Emelet
földszint.
Épület szintje
3.
Épült
2026
Lift
nincs
Ingatlan állapot
kívül: új
belül: új
Fűtés
hőszivattyús
Komfort
összkomfort
Energetika
nincs megadva
HTML
PDF
Eladó új építésű téglalakás
Ingatlan azonosító:
4195_ko
Győr-Moson-Sopron megye, Levél
Irányár
47.49 M Ft
(1.19 M Ft/㎡)
(1.19 M Ft/㎡)
Szobák
2 szoba
Emelet
földszint
Terület
40 m²
INGATLAN LEÍRÁSA
Napsugár Lakópark – új otthon születik
A Napsugár Lakóparkban olyan új építésű lakások készülnek, amelyek hosszú távon is kényelmes és élhető otthont biztosítanak.
A projekt két különálló épületben valósul meg, átgondolt lakásmixszel, modern szemlélettel és jövőbe mutató koncepcióval.
Az értékesítés első szakasza különösen kedvező lehet azok számára, akik első otthonukat keresik, és szeretnének már a kezdetektől részesei lenni egy minőségi fejlesztésnek.
Tervezett kulcsrakész átadás: 2027 II. negyedév
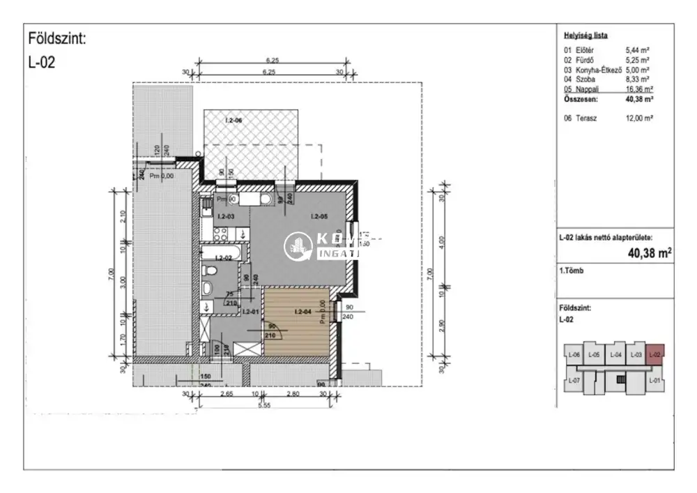
Jelen hirdetésben szereplő fölszinti lakás 40,38 m2 hasznos alapterülettel rendelkezik, elosztását tekintve rendelkezik egy amerikai konyhás nappalival, hálószobával, egy fürdőszobával, valamint egy 12 m2 nagyságú terasszal.
Minőségi kivitelezés:
Fűtés: gáz+ hőszivattyús hibrid rendszer padlófűtéssel, lakásonként egyedi mérőórával, klíma előkészítéssel
Nyílászárók: 3 rétegű, 5 légkamrás hőszigetelt üvegezés
Hőszigetelés: 15 cm EPS rendszer
Szerkezet: PTH30 N+F falazat, monolit vasbeton födém
A feltüntetett vételár, fűtéskész állapotra vonatkozik. Igény esetén a kivitelező vállalja a kulcsrakész befejezést is. Tároló és parkoló az ingatlanhoz külön vásárolható!
Amennyiben felkeltette ez a hirdetés az érdeklődését vagy további kérdései vannak, akkor keressen bizalommal.
Irodánk készséggel segít hitel, támogatások díjmentes ügyintézésében is.
A Napsugár Lakóparkban olyan új építésű lakások készülnek, amelyek hosszú távon is kényelmes és élhető otthont biztosítanak.
A projekt két különálló épületben valósul meg, átgondolt lakásmixszel, modern szemlélettel és jövőbe mutató koncepcióval.
Az értékesítés első szakasza különösen kedvező lehet azok számára, akik első otthonukat keresik, és szeretnének már a kezdetektől részesei lenni egy minőségi fejlesztésnek.
Tervezett kulcsrakész átadás: 2027 II. negyedév
Jelen hirdetésben szereplő fölszinti lakás 40,38 m2 hasznos alapterülettel rendelkezik, elosztását tekintve rendelkezik egy amerikai konyhás nappalival, hálószobával, egy fürdőszobával, valamint egy 12 m2 nagyságú terasszal.
Minőségi kivitelezés:
Fűtés: gáz+ hőszivattyús hibrid rendszer padlófűtéssel, lakásonként egyedi mérőórával, klíma előkészítéssel
Nyílászárók: 3 rétegű, 5 légkamrás hőszigetelt üvegezés
Hőszigetelés: 15 cm EPS rendszer
Szerkezet: PTH30 N+F falazat, monolit vasbeton födém
A feltüntetett vételár, fűtéskész állapotra vonatkozik. Igény esetén a kivitelező vállalja a kulcsrakész befejezést is. Tároló és parkoló az ingatlanhoz külön vásárolható!
Amennyiben felkeltette ez a hirdetés az érdeklődését vagy további kérdései vannak, akkor keressen bizalommal.
Irodánk készséggel segít hitel, támogatások díjmentes ügyintézésében is.
INGATLAN ADATAI
Ingatlan típusa
l2
Ingatlan jellege
téglalakás
Belső terület
40 m²
Tájolás
dél
Építési állapot
új
Építési mód
tégla
Szobák száma
2 szoba
Terasz
12 m²
Emelet
földszint.
Épület szintje
3.
Épült
2026
Lift
nincs
Ingatlan állapot
kívül: új
belül: új
belül: új
Fűtés
hőszivattyús
Komfort
összkomfort
Energetika
nincs megadva
TÉRKÉP
Győr-Moson-Sopron megye, Levél
Hitelkalkulátor
KAPCSOLAT
Borbély Róbert
+36 70 803 0683
borbely.robert@komplexingatlan.com
KAPCSOLAT
IDŐPONTOT KÉREK
VISSZAHÍVÁST KÉREK
AJÁNLOM EGY ISMERŐSÖMNEK
MEGOSZTÁS
KAPCSOLATFELVÉTEL
Az üzenetet sikeresen elküldtük!
Hiba történt!
INGATLAN ADATAI
Ingatlan típusa
l2
Ingatlan jellege
téglalakás
Belső terület
40 m²
Tájolás
dél
Építési állapot
új
Építési mód
tégla
Szobák száma
2 szoba
Terasz
12 m²
Emelet
földszint.
Épület szintje
3.
Épült
2026
Lift
nincs
Ingatlan állapot
kívül: új
belül: új
Fűtés
hőszivattyús
Komfort
összkomfort
Energetika
nincs megadva
HTML
PDF