KAPCSOLAT
IDŐPONTOT KÉREK
VISSZAHÍVÁST KÉREK
AJÁNLOM EGY ISMERŐSÖMNEK
MEGOSZTÁS
KAPCSOLATFELVÉTEL
Az üzenetet sikeresen elküldtük!
Hiba történt!
INGATLAN ADATAI
Ingatlan típusa
l7
Ingatlan jellege
téglalakás
Belső terület
46 m²
Tájolás
dél
Építési állapot
új
Építési mód
tégla
Szobák száma
2 szoba
Terasz
12 m²
Emelet
földszint.
Épület szintje
3.
Épült
2026
Lift
nincs
Ingatlan állapot
kívül: új
belül: új
Fűtés
hőszivattyús
Komfort
összkomfort
Energetika
nincs megadva
HTML
PDF
Eladó új építésű téglalakás
Ingatlan azonosító:
4201_ko
Győr-Moson-Sopron megye, Levél
Irányár
52.99 M Ft
(1.15 M Ft/㎡)
(1.15 M Ft/㎡)
Szobák
2 szoba
Emelet
földszint
Terület
46 m²
INGATLAN LEÍRÁSA
A Napsugár Lakópark egy két tömbből álló, összesen 46 lakást magában foglaló új építésű társasházi projekt, amelynek előértékesítése 2025 decemberében indul.
A beruházás mögött a térség egyik meghatározó kivitelezője áll, ami stabil alapot jelent mind a megvalósítás, mind a későbbi értékállóság szempontjából.
Az előértékesítési szakasz lehetőséget biztosít a legkedvezőbb lakások kiválasztására, valamint egyedi induló feltételek igénybevételére az első szerződők számára.
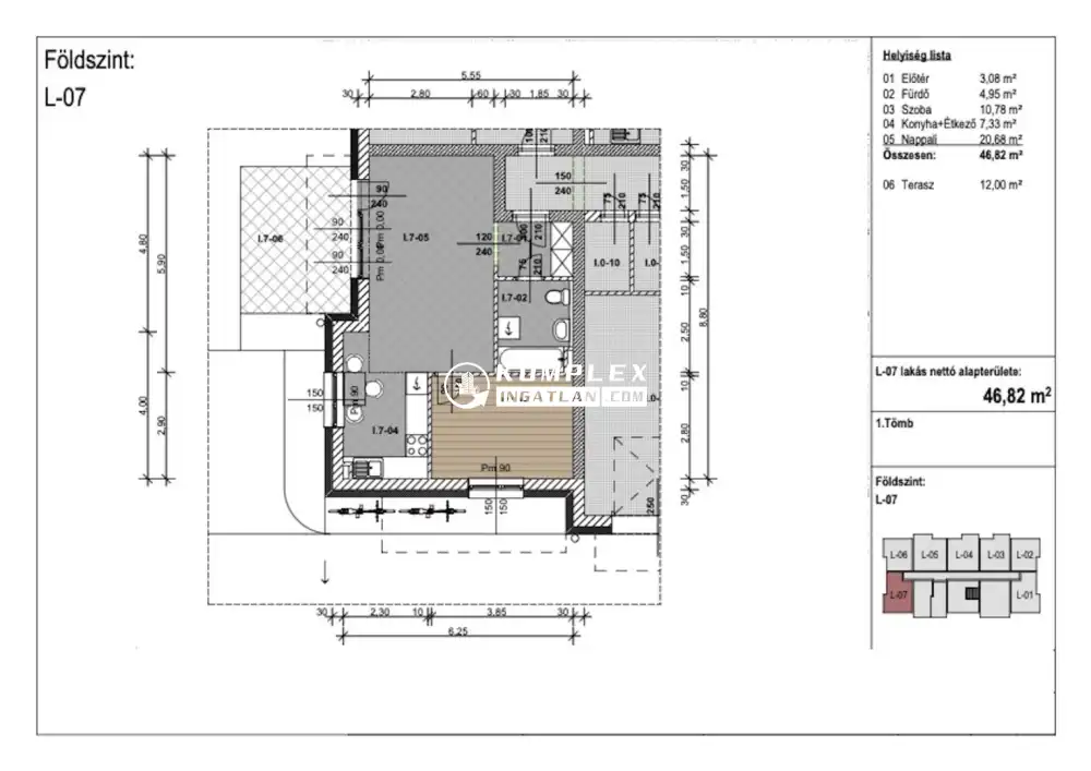
Jelen hirdetésben szereplő fölszinti lakás 46,81 m2 hasznos alapterülettel rendelkezik, elosztását tekintve rendelkezik egy amerikai konyhás nappalival, hálószobával, egy fürdőszobával, valamint egy 12 m2 nagyságú terasszal.
Tervezett kulcsrakész átadás: 2027 II. negyedév
Minőségi kivitelezés:
Fűtés: gáz+ hőszivattyús hibrid rendszer padlófűtéssel, lakásonként egyedi mérőórával, klíma előkészítéssel
Nyílászárók: 3 rétegű, 5 légkamrás hőszigetelt üvegezés
Hőszigetelés: 15 cm EPS rendszer
Szerkezet: PTH30 N+F falazat, monolit vasbeton födém
A feltüntetett vételár, fűtéskész állapotra vonatkozik. Igény esetén a kivitelező vállalja a kulcsrakész befejezést is. Tároló és parkoló az ingatlanhoz külön vásárolható!
Amennyiben felkeltette ez a hirdetés az érdeklődését vagy további kérdései vannak, akkor keressen bizalommal.
A beruházás mögött a térség egyik meghatározó kivitelezője áll, ami stabil alapot jelent mind a megvalósítás, mind a későbbi értékállóság szempontjából.
Az előértékesítési szakasz lehetőséget biztosít a legkedvezőbb lakások kiválasztására, valamint egyedi induló feltételek igénybevételére az első szerződők számára.
Jelen hirdetésben szereplő fölszinti lakás 46,81 m2 hasznos alapterülettel rendelkezik, elosztását tekintve rendelkezik egy amerikai konyhás nappalival, hálószobával, egy fürdőszobával, valamint egy 12 m2 nagyságú terasszal.
Tervezett kulcsrakész átadás: 2027 II. negyedév
Minőségi kivitelezés:
Fűtés: gáz+ hőszivattyús hibrid rendszer padlófűtéssel, lakásonként egyedi mérőórával, klíma előkészítéssel
Nyílászárók: 3 rétegű, 5 légkamrás hőszigetelt üvegezés
Hőszigetelés: 15 cm EPS rendszer
Szerkezet: PTH30 N+F falazat, monolit vasbeton födém
A feltüntetett vételár, fűtéskész állapotra vonatkozik. Igény esetén a kivitelező vállalja a kulcsrakész befejezést is. Tároló és parkoló az ingatlanhoz külön vásárolható!
Amennyiben felkeltette ez a hirdetés az érdeklődését vagy további kérdései vannak, akkor keressen bizalommal.
INGATLAN ADATAI
Ingatlan típusa
l7
Ingatlan jellege
téglalakás
Belső terület
46 m²
Tájolás
dél
Építési állapot
új
Építési mód
tégla
Szobák száma
2 szoba
Terasz
12 m²
Emelet
földszint.
Épület szintje
3.
Épült
2026
Lift
nincs
Ingatlan állapot
kívül: új
belül: új
belül: új
Fűtés
hőszivattyús
Komfort
összkomfort
Energetika
nincs megadva
TÉRKÉP
Győr-Moson-Sopron megye, Levél
Hitelkalkulátor
KAPCSOLAT
Borbély Róbert
+36 70 803 0683
borbely.robert@komplexingatlan.com
KAPCSOLAT
IDŐPONTOT KÉREK
VISSZAHÍVÁST KÉREK
AJÁNLOM EGY ISMERŐSÖMNEK
MEGOSZTÁS
KAPCSOLATFELVÉTEL
Az üzenetet sikeresen elküldtük!
Hiba történt!
INGATLAN ADATAI
Ingatlan típusa
l7
Ingatlan jellege
téglalakás
Belső terület
46 m²
Tájolás
dél
Építési állapot
új
Építési mód
tégla
Szobák száma
2 szoba
Terasz
12 m²
Emelet
földszint.
Épület szintje
3.
Épült
2026
Lift
nincs
Ingatlan állapot
kívül: új
belül: új
Fűtés
hőszivattyús
Komfort
összkomfort
Energetika
nincs megadva
HTML
PDF