KAPCSOLAT
IDŐPONTOT KÉREK
VISSZAHÍVÁST KÉREK
AJÁNLOM EGY ISMERŐSÖMNEK
MEGOSZTÁS
KAPCSOLATFELVÉTEL
Az üzenetet sikeresen elküldtük!
Hiba történt!
INGATLAN ADATAI
Ingatlan típusa
l10
Ingatlan jellege
téglalakás
Belső terület
40 m²
Tájolás
észak
Építési állapot
új
Építési mód
tégla
Szobák száma
2 szoba
Erkély
7.5 m²
Emelet
1.
Épület szintje
3.
Épült
2026
Lift
nincs
Ingatlan állapot
kívül: új
belül: új
Fűtés
hőszivattyús
Komfort
összkomfort
Energetika
nincs megadva
HTML
PDF
Eladó új építésű téglalakás
Ingatlan azonosító:
4204_ko
Győr-Moson-Sopron megye, Levél
Irányár
39.5 M Ft
(987.5 E Ft/㎡)
(987.5 E Ft/㎡)
Szobák
2 szoba
Emelet
1
Terület
40 m²
INGATLAN LEÍRÁSA
Napsugár Lakópark – Levél, határmenti lokáció
A Levélen megvalósuló Napsugár Lakópark egy két tömbből álló, 46 lakásos új építésű társasházi fejlesztés.
A település elhelyezkedése kiemelkedő: Mosonmagyaróvár gyorsan elérhető, az M1 autópálya közelsége pedig Ausztria és Szlovákia irányába is kiváló közlekedést biztosít, ami stabil bérleti keresletet eredményez.
Az értékesítés legelső szakasza ideális lehetőség befektetők számára, akik jó lokációban, hosszú távon értékálló ingatlant keresnek.
Tervezett kulcsrakész átadás: 2027 II. negyedév
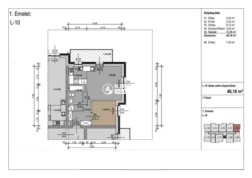
Jelen hirdetésben szereplő első emeleti lakás 40,16 m2 hasznos alapterülettel rendelkezik, elosztását tekintve rendelkezik egy amerikai konyhás nappalival, hálószobával, egy fürdőszobával, valamint egy 7,5 m2 nagyságú erkéllyel.
Minőségi kivitelezés:
Fűtés: gáz+ hőszivattyús hibrid rendszer padlófűtéssel, lakásonként egyedi mérőórával, klíma előkészítéssel
Nyílászárók: 3 rétegű, 5 légkamrás hőszigetelt üvegezés
Hőszigetelés: 15 cm EPS rendszer
Szerkezet: PTH30 N+F falazat, monolit vasbeton födém
A feltüntetett vételár, fűtéskész állapotra vonatkozik. Igény esetén a kivitelező vállalja a kulcsrakész befejezést is. Tároló és parkoló az ingatlanhoz külön vásárolható!
Amennyiben felkeltette ez a hirdetés az érdeklődését vagy további kérdései vannak, akkor keressen bizalommal.
Irodánk készséggel segít hitel, támogatások díjmentes ügyintézésében is.
A Levélen megvalósuló Napsugár Lakópark egy két tömbből álló, 46 lakásos új építésű társasházi fejlesztés.
A település elhelyezkedése kiemelkedő: Mosonmagyaróvár gyorsan elérhető, az M1 autópálya közelsége pedig Ausztria és Szlovákia irányába is kiváló közlekedést biztosít, ami stabil bérleti keresletet eredményez.
Az értékesítés legelső szakasza ideális lehetőség befektetők számára, akik jó lokációban, hosszú távon értékálló ingatlant keresnek.
Tervezett kulcsrakész átadás: 2027 II. negyedév
Jelen hirdetésben szereplő első emeleti lakás 40,16 m2 hasznos alapterülettel rendelkezik, elosztását tekintve rendelkezik egy amerikai konyhás nappalival, hálószobával, egy fürdőszobával, valamint egy 7,5 m2 nagyságú erkéllyel.
Minőségi kivitelezés:
Fűtés: gáz+ hőszivattyús hibrid rendszer padlófűtéssel, lakásonként egyedi mérőórával, klíma előkészítéssel
Nyílászárók: 3 rétegű, 5 légkamrás hőszigetelt üvegezés
Hőszigetelés: 15 cm EPS rendszer
Szerkezet: PTH30 N+F falazat, monolit vasbeton födém
A feltüntetett vételár, fűtéskész állapotra vonatkozik. Igény esetén a kivitelező vállalja a kulcsrakész befejezést is. Tároló és parkoló az ingatlanhoz külön vásárolható!
Amennyiben felkeltette ez a hirdetés az érdeklődését vagy további kérdései vannak, akkor keressen bizalommal.
Irodánk készséggel segít hitel, támogatások díjmentes ügyintézésében is.
INGATLAN ADATAI
Ingatlan típusa
l10
Ingatlan jellege
téglalakás
Belső terület
40 m²
Tájolás
észak
Építési állapot
új
Építési mód
tégla
Szobák száma
2 szoba
Erkély
7.5 m²
Emelet
1.
Épület szintje
3.
Épült
2026
Lift
nincs
Ingatlan állapot
kívül: új
belül: új
belül: új
Fűtés
hőszivattyús
Komfort
összkomfort
Energetika
nincs megadva
TÉRKÉP
Győr-Moson-Sopron megye, Levél
Hitelkalkulátor
KAPCSOLAT
Borbély Róbert
+36 70 803 0683
borbely.robert@komplexingatlan.com
KAPCSOLAT
IDŐPONTOT KÉREK
VISSZAHÍVÁST KÉREK
AJÁNLOM EGY ISMERŐSÖMNEK
MEGOSZTÁS
KAPCSOLATFELVÉTEL
Az üzenetet sikeresen elküldtük!
Hiba történt!
INGATLAN ADATAI
Ingatlan típusa
l10
Ingatlan jellege
téglalakás
Belső terület
40 m²
Tájolás
észak
Építési állapot
új
Építési mód
tégla
Szobák száma
2 szoba
Erkély
7.5 m²
Emelet
1.
Épület szintje
3.
Épült
2026
Lift
nincs
Ingatlan állapot
kívül: új
belül: új
Fűtés
hőszivattyús
Komfort
összkomfort
Energetika
nincs megadva
HTML
PDF